| « Back to Stone fireplace mantels |
![]() |
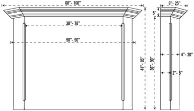
TUSCAN & 1106.536 Mantel |
| For a truly dramatic fireplace, overmantels can be placed above the mantel to add visual interest and height. Precision and intricate detailing make our overmantels master pieces. Most overmantels can be custom made with a niche to accommodate a flat screen tv. | |
![]() |